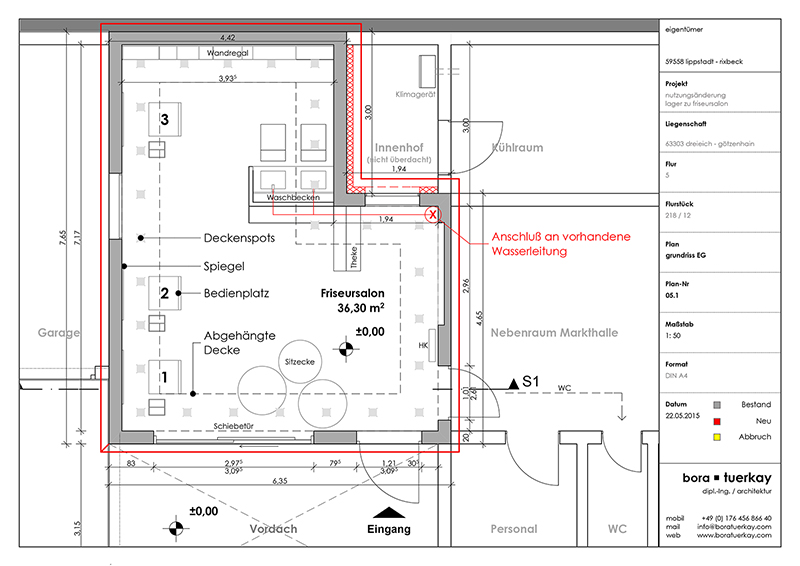
• Konzept >